Be part of the new Savoy Cinema Market Place development.
We are excited to announce three prime units available from June 2025 as part of the exciting new Savoy four-screen town centre development.
Be part of this vibrant retail and leisure destination, anchored by the Savoy Cinema. Click the button below for more information on commercial property units available.

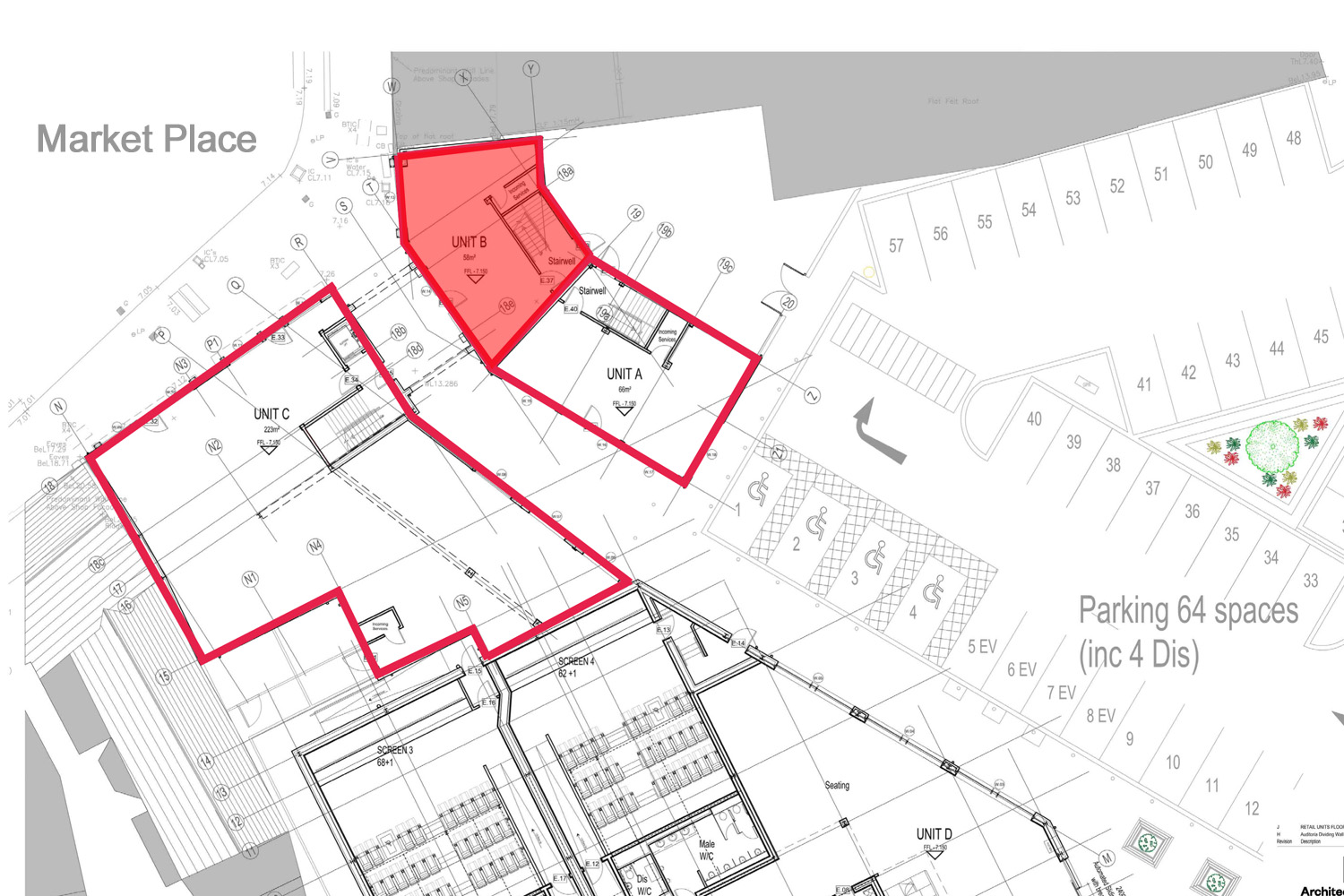
132 sq.m. (1,420 sq.ft.), ideal for retail or F&B, with frontage onto the new pedestrian link between the Market Place, Savoy Cinema and Marshalls Yard. Includes private rear access for deliveries.

174 sq.m. (1,873 sq.ft.), featuring market-facing frontage with an adjacent entrance leading to the Savoy Cinema. Includes private rear access for deliveries.

519 sq.m. (5,586 sq.ft.) across three floors, with double frontage onto the Market Place. Includes ground-floor seating for 100 covers and an upper-level events space. Perfect for an F&B venue.
Gainsborough also offers a variety of additional commercial spaces, all benefiting from the town’s revitalisation and increased footfall. The Council is available to assist businesses in finding the ideal location.